Contact Us

Crompton Road, Lowestoft

4 Bed

1 Bath

Contact Us

Crompton Road, Lowestoft

4 Bed

1 Bath

Share this listing

Reserve 'Off Plan'

Quality Fittings Throughout

Only 6 Units

Within 100m Of Marina

Perfect Holiday/Family/Investment Home

Estimated Completion Summer 2022

*ALL SOLD OFF PLAN CALL TODAY TO REGISTER FOR NEXT PHASE*' Just released, latest phase of just 6 quality homes, providing large well proportioned living accommodation planed over 3 floors. Early reservation allows client choices of kitchen and...

*RESERVE TODAY*' Just released, latest phase of just 6 quality homes, providing large well proportioned living accommodation planed over 3 floors. Early reservation allows client choices of kitchen and sanitary ware*. Estimated completion early summer 2022. Call today for further information.

* Reservation fee required.
* Choice of Kitchen units and appliances up to the value of £5000, If clients wish to spend more they can with the difference to be paid by the purchaser prior to the kitchen being ordered.
*Potential purchaser have the choice of sanitary ware for the bathrooms and en-suites up the value of £4000 (In total for all rooms) If clients wish to spend more they can with any additional payments made by the buyer prior to the order being placed.

Disclaimer

Howards Estate Agents also offer a professional, ARLA accredited Lettings and Management Service. If you are considering renting your property in order to purchase, are looking at buy to let or would like a free review of your current portfolio then please call the Lettings Branch Manager on the number shown above.

Howards Estate Agents is the seller's agent for this property. Your conveyancer is legally responsible for ensuring any purchase agreement fully protects your position. We make detailed enquiries of the seller to ensure the information provided is as accurate as possible. Please inform us if you become aware of any information being inaccurate.

Location

More Information

Domestic Rates 0.00

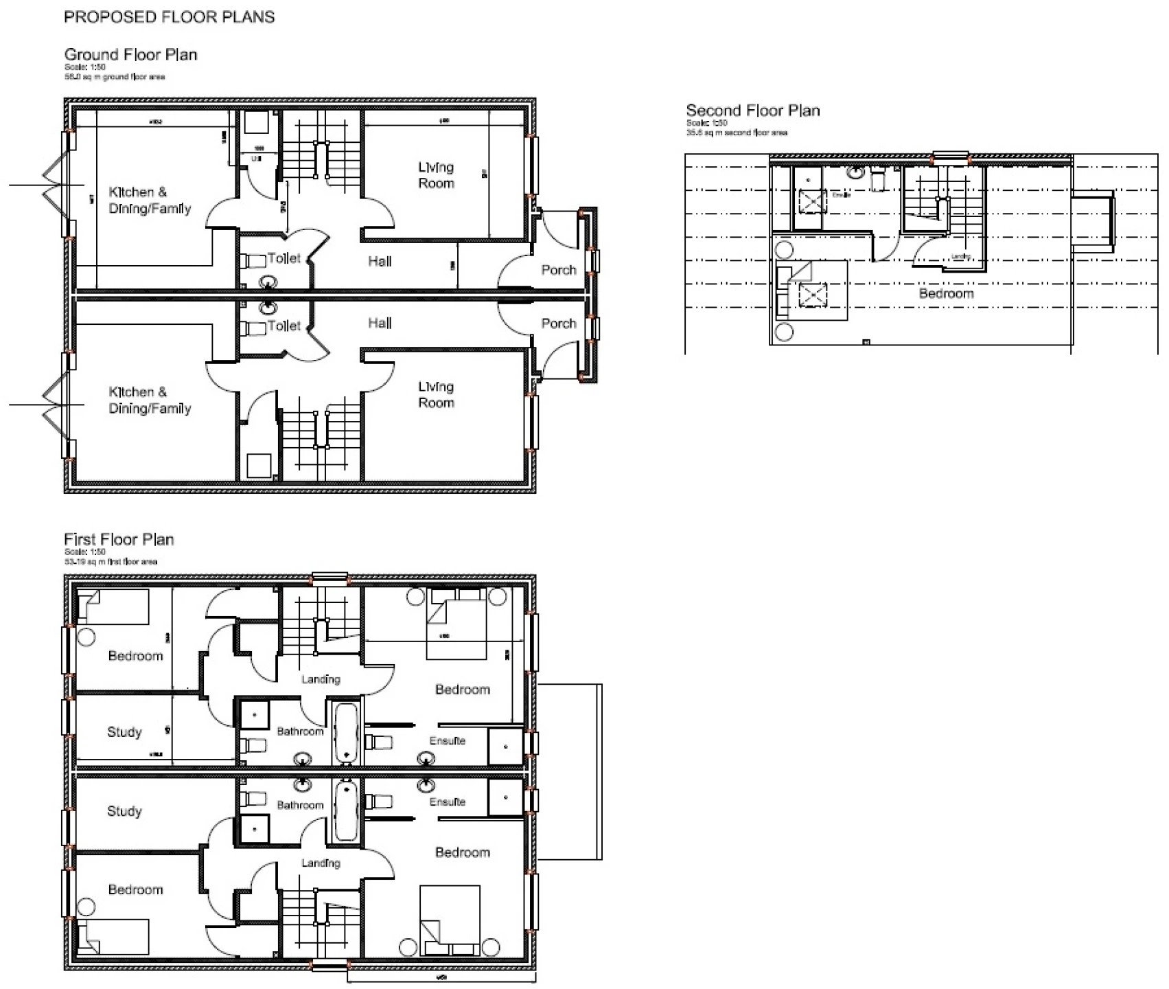
Room Descriptions

Entrance Hall

Cloakroom

Lounge

Kitchen/Diner/Day Room

First Floor Landing

Bedroom 2

Ensuite Shower Room

Bedroom 3

Bedroom 4

Bathroom

Bedroom 1

Ensuite Shower Room

Outside

Agents Note

Council Tax Band: TO BE DETIRMINED ONCE PROPERTY COMPLETED

Share this listing

Property enquiry form background image

Property Enquiry

Request submitted!

Something went wrong.